有故事的花園:紐約虎溪花園
2017-06-06 16:05:49 作者:郭愛/編譯 來源:WLA 瀏覽次數:
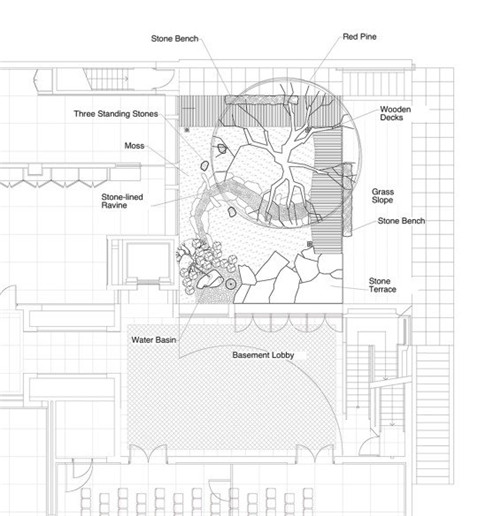
虎溪花園的設計是以日本園林中世紀時期的形式“枯山水”為基礎設計的。園林布局簡介,枯山水園林很抽象,用雕塑來代表自然景物,把它們所包含的寓言意義也引入到設計中。“枯山水”是干枯的山和水的意思,這里的“山水”代表的是“自然”,“枯”是指用石頭代表園林中的水。很多“枯山水”園林使用白色的沙子代表水的波紋,讓人聯想到水的感覺。虎溪花園用成百上千的小石子代表水,在陸地上劃出水流湍急的圖案。

虎溪花園的創作完成得益于捐助人瑞貝卡(Rebecca)和詹姆斯·摩根(James Morgan)。


編輯:guoai
凡注明“風景園林網”的所有文章、項目案例等內容,版權歸屬本網,未經本網授權不得轉載、摘編或利用其它方式使用上述作品。已經本網授權者,應在授權范圍內使用,并注明“來源:風景園林網”。違反上述聲明者,本網將追究其相關法律責任。
相關閱讀
汪怡嘉:特色城鎮的景觀設計與實踐
汪怡嘉女士是臺灣中國文化大學造園景觀系教授,曾任AECOM 中國區景觀設計副總監,致力于園林景觀規劃及設計已有二十年以上。她多元化的項目經驗來自美國、臺灣、香港、中國大陸及其它亞洲不同地區的項目。項目類型包括【詳細】