上海浦江郊野公園下月正式開園 它原來長這樣
6月21日下午,市規土局發布消息,下個月,位于閔行浦江鎮的浦江郊野公園將正式開園!這是上海首批7個郊野公園中第四座建成開放的郊野公園,總占地面積15平方公里??!
跟前面三座相比,它有什么新看點呢?也是巧了,大眼妹正好去那里探了個營,接下來就為你劇透。
0





按照規劃,7個郊野公園風格各異,比如廊下是“農業”,青西是“濕地”、長興島是“涵養林”,而浦江則是“都市森林”。上周,大眼妹和航拍師提前探營了正在沖刺建設的浦江郊野公園,竟然發現在核心區聳立著一座城堡!一瞬間,大眼妹還以為走進了迪士尼樂園。來,一分鐘航拍大片讓你先睹為快!
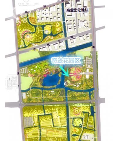
【奇跡花園區 Miracle Garden 】
航拍呈現的這一片城堡區域,叫“奇跡花園區”,位于浦江郊野公園核心區中央,也是下個月即將與市民見面的首期開放區域之一。
城堡是有名字的,叫“花精靈城堡”,創造靈感來源于童話故事里花精靈女王的夢幻城堡,建成后,整座城堡一年四季都將開滿五彩斑斕的鮮花?;ň`城堡既是奇跡花園標志建筑,又是園區最高的觀景點。
以城堡為起點,一片16000平米的鮮花谷徐徐展開,空中俯瞰形態猶如孔雀開屏。
“天空之橋”高空棧道,連接花精靈城堡,環繞整個奇跡花園。游客能通過棧道穿梭于城堡、花園喬木和其他建筑之間。什么其他建筑物?就是下圖——“芙羅拉教堂”。
“芙羅拉”(Flora)是希臘神話的花神。馬可波羅的家鄉意大利把每年的4月28日至5月3日定為花神節。按照當地習俗,人們會歡聚在一起用各種鮮花裝扮自己,期盼花神賜福。“奇跡花園區”引用了這一美好習俗,將芙羅拉教堂建于與城堡相對的花園軸心線上,只要你預約,就可以在這里舉辦真正的教堂婚禮!
“奇跡花園區”的設計者陸苗還告訴大眼妹一個設計秘密,為了有別于千篇一律的平面花展,郊野公園特別設計了一個山谷地形,讓各種花、草、樹、石依山谷形態布置,游客參觀也需“跋山涉水”,類似當下最時尚的山地hiking。
這片兒童區是不是讓你眼前一亮?這是用森林原生態材料打造的“無動力游樂設施”。這里有亞洲最長的攀爬網、有一定挑戰的攀爬塔、造型可愛的聽聲園、鍛煉小朋友平衡能力與勇氣的獨木棧橋、玩轉創意的沙坑、挑戰刺激的滑滑梯等。適合3-18歲人群。
是的,還有水上樂園!熱帶風情的mini水寨、滑梯、噴水裝置等水上設施。大眼妹覺得,這設施簡直不像個郊野公園,但這招對家長和孩子們決定有效,特別開園時正迎來炎炎酷暑。
在“奇跡花園區”內共有17個景點,大眼妹就不一一列舉了,但這個“兒童探索館”還是要提一下。為了達到科普教育目的,這里設置了一些互動體驗項目,比如花園里的沉浸式戲劇、手工坊、創想科學營、人工智能館等。
【最美公園七景】
“千米花溪”:營造林間花溪景觀。林下地被以花為主題進行設計,如紫花地丁、美女櫻等,林下有游客休息木平臺。在河邊增加卵石,模擬自然的河灘。
“森林演藝”:占地面積1000平方米,承擔演藝中心功能,游客可以在這兒喝咖啡聊音樂。
“活力森林”:在林地間,集中設置了一片休閑運動場地,有籃球場、滑板場等,滿足市民日常運動需求。
“大寨靜湖”:湖面約3公頃,是整片郊野公園的中心湖泊景觀,由外湖和內湖兩個部分組成,還有長堤和島嶼。
“白鷺柳岸”:野生白鷺的棲息地,因為保留了現狀良好的柳林和水岸,所以成了白鷺天堂。
“紅杉鏡塘”:浦江郊野公園的一大特色是“秋景”。這片紅杉占地34畝,杉樹與環繞的水面形成鏡面效果。杉林中還設置了引鳥樁,讓野鴨鳥群棲息。
“銀杏醉秋”:占地45畝,大片整齊的銀杏林中穿梭著木棧道,秋日黃葉滿地時,漫步林間,可以感受到絢麗的濃濃秋意。
看了那么多,你心動了沒有?7月份,一起約起吧!地鐵8號線沈杜公路站附近!
相關閱讀
農田成網紅,世界級郊野公園離我們有多遠?
近日,上海嘉北郊野公園的一片農田成了【詳細】
鄭州規劃49個郊野公園 新建公園小游園123個
中牟縣牟山郊野公園、雁鳴湖郊野公園,這樣的【詳細】
北京規劃百個郊野公園 副中心林蔭路全覆蓋
黨代會報告為建設生態城市指明了“天藍水清、森林環繞”兩大目標,提出城市將戴“綠色項鏈”。新京報記者獲悉,北京現已建成81個郊野公園;五六環間有條件的平原造林地塊也將逐步改造為郊野公園。此外,城市副中心將百分之百覆蓋林蔭路。【詳細】
成都城北“綠肺”建成 新都城區將降溫3攝氏度
為實現“300米見綠、500米見園”,重現“綠滿蓉城、花重錦官、水潤天府”的盛景,讓市民“慢下腳步、靜下心來,親近自然、享受生活”。成都市第十三次黨代會提出,按照“景觀化、景區化、可進入、可參與”理念,構建生態區、綠道、公園、小游園、微綠地五級城市綠化體系。【詳細】