2019園冶杯專業獎丨奎山水泥廠區AAA景觀提升改造項目

項目名稱:奎山水泥廠區AAA景觀提升改造項目
項目位置:河北省邢臺市
項目面積:365000㎡
業主單位:奎山水泥有限公司
設計單位:內蒙古蒙樹景觀規劃設計藝術有限公司
主創設計:樊宇
設計團隊:劉文旭、韓嘉峰、溫洋、言涵、董帥
設計時間:2019.3.1-2019.6.30
項目概述
項目地位于隆堯縣西部,山口鎮南部,總占地面積36.5萬平方米(548.6畝)。由于項目地存在污染較為嚴重的問題,通過設計廠區內道路、綠化、園林景觀小品及其他附屬設施,依托水泥廠良好的資源基質,以生態可持續,結合景觀改造措施,塑造“廠為魂,綠為韻,文為意”的總體空間氛圍,營建以展示科普為特色,集旅游觀光、文化展示、科普教育、安全生產、文化體驗、趣味游覽為一體的工業旅游目的地,最終形成生態環境健康,景觀意象豐富,項目設施一流的綜合性工業景區。

△ 現狀航拍
設計思路
通過提升水泥廠項目的藝術審美,增加人群參與互動性,打造多樣化的一站式園林工廠,同時注重生態化的要求打造工廠景觀,從而創造屬于工廠項目獨特的景觀符號。抓住未來廠區的發展趨勢,通過解決廠區發展趨勢的需要,探索現代廠區綜合形態的新高度。創造出具有獨特精神性和強辨識性的現代一站式廠區景觀。打造廠區景觀的新領航標。


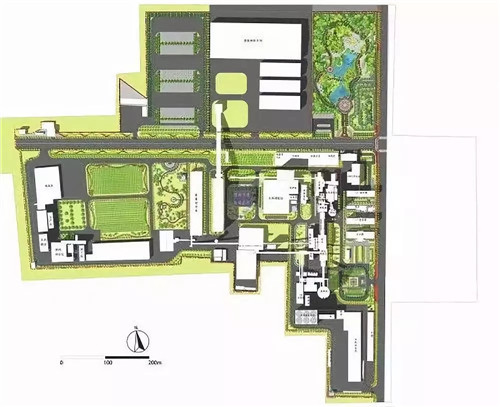
△ 總平面圖




△ 主要節點圖
設計亮點
廠區零排放
設計人工湖,建設污水處理系統,廠區內所有排水進行處理收集再利用。
豐富的藝術體驗
增設文化展示區、博物館、未來展示區等空間,結合創意設計互動景觀,帶給人豐富的藝術體驗。
健全完善的文化展示
集企業文化、生產文化、本土特色文化、水泥發展史等文化與一體,通過展板、景觀小品、景石等元素充分展示企業文化。
智能除塵系統
搭載智能化控制系統,路燈增設智能除塵系統,景觀設計噴泉霧森景觀,對廠區內進行降塵及空氣凈化。
吸收有害氣體植物運用
選用抗粉塵、二氧化硫、氮氧化物、氟化氫等有害氣體植物,豐富景觀的同時,起到吸收有害氣體作用,保證空氣質量。

















△ 效果圖
編輯:王月
相關閱讀
江蘇揚州:今年實施五大攻堅行動提升城市綠化
城市道路綠化增綠行動。利用今年春季綠化黃金季節,針對城市道路綠化達標率、林蔭路覆蓋率等指標,全面開展道路綠化增綠提綠補綠,重點對87條道路的行道樹“有綠無蔭、有景少蔭”、綠化品種單一等問題進行整改,形成配置合理、錯落有致、層次清晰的道路綠化景觀【詳細】
北京昌平新城東區將打造濱水商業消費新地標
昌平新城東區位于昌平區南邵鎮,規劃建設用地面積11平方公里,規劃人口12萬,圍繞打造首都北部消費新地標編織街區控規已獲批。未來,昌平新城東區將打造成為京北體驗消費示范區、山水宜居典范城區、高水平綜合服務承載區和智慧產研創新園區【詳細】
南寧園博園舉辦“禮樂園博·南寧花朝盛典”
活動期間,南寧園博園還舉辦了漢服新秀大賽、同袍巡游、及笄成人禮、國風婚禮妝照展示、明制婚禮儀式典禮、六藝游園、書畫體驗、國風集市等精彩紛呈的活動,同時邀請眾多知名國風模特參與表演展示【詳細】
成都首屆“最美公園”評選結果出爐
據成都市公園城市建設管理局相關負責人介紹,本次“最美公園”評選范圍包括23個區(市)縣已建成開放的1514個公園,包括綜合公園、口袋公園,還有郊野公園【詳細】



