2019園冶杯專業獎丨意大利科雷吉奧校園節能樓設計
項目名稱:校園節能樓
項目位置:意大利,科雷吉奧
項目面積:5000平方米
建筑面積:2700平方米
設計單位:Rizoma Architecture
設計時間:2014-2018
施工時間:2016-2018
項目概況
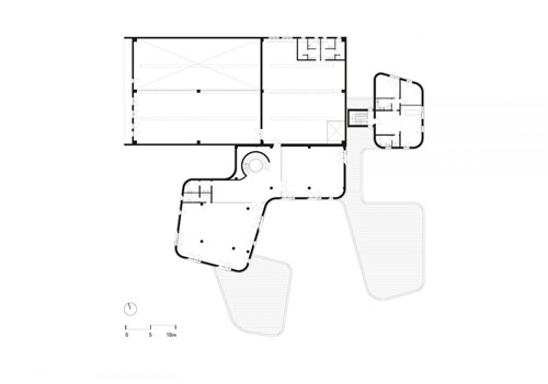
這家意大利公司以新能源的制作以及太陽能的存儲為特色,本項目是為其設計新辦公樓及生產空間。
項目坐落于克雷吉奧地區,距離勒佐-艾米利亞(Reggio Emilia)高鐵站很近,用地面積5000平方米,建筑用地面積2700平方米。設計團隊對南方的鄉村布局以及遠處地平線的山脈走向進行綜合評估后,把房子的位置和全天的太陽直射光結合,提出了一個開放庭院式的設計方案,而且從南側可以見到整個庭院的全貌。




該建筑群因為不同的功能被分為兩個部分,生產中心使用規則的形狀,采用笛卡爾設計,坐落在東北側。辦公室設在該建筑物的南側。
這棟樓不但具有辦公功能,還有培訓中心,采用有機的、不規律的設計,層高和形式不同,所有的形式均圍繞著庭院布局。從入口可以進入建筑群左側配樓,辦公空間設在三層以上,而培訓中心、工作間、會議室位于一樓或者二樓。所需的能源完全自給自足,在屋頂有500平方米的太陽能板,產生能量為建筑群服務。







編輯:李海英
相關閱讀
江蘇揚州:今年實施五大攻堅行動提升城市綠化
城市道路綠化增綠行動。利用今年春季綠化黃金季節,針對城市道路綠化達標率、林蔭路覆蓋率等指標,全面開展道路綠化增綠提綠補綠,重點對87條道路的行道樹“有綠無蔭、有景少蔭”、綠化品種單一等問題進行整改,形成配置合理、錯落有致、層次清晰的道路綠化景觀【詳細】
北京昌平新城東區將打造濱水商業消費新地標
昌平新城東區位于昌平區南邵鎮,規劃建設用地面積11平方公里,規劃人口12萬,圍繞打造首都北部消費新地標編織街區控規已獲批。未來,昌平新城東區將打造成為京北體驗消費示范區、山水宜居典范城區、高水平綜合服務承載區和智慧產研創新園區【詳細】
南寧園博園舉辦“禮樂園博·南寧花朝盛典”
活動期間,南寧園博園還舉辦了漢服新秀大賽、同袍巡游、及笄成人禮、國風婚禮妝照展示、明制婚禮儀式典禮、六藝游園、書畫體驗、國風集市等精彩紛呈的活動,同時邀請眾多知名國風模特參與表演展示【詳細】
成都首屆“最美公園”評選結果出爐
據成都市公園城市建設管理局相關負責人介紹,本次“最美公園”評選范圍包括23個區(市)縣已建成開放的1514個公園,包括綜合公園、口袋公園,還有郊野公園【詳細】



