可以自主呼吸的房子——越南峴港“白蟻屋”
項目名稱:白蟻屋(Termitary House)
項目地點:越南,峴港市(Da Nang City, Vietnam)
場地面積:190 ㎡
建筑面積:140 ㎡
設計單位:Tropical Space Co.,Ltd
主創設計: Nguyen Hai Long, Tran Thi Ngu Ngon
設計團隊:Phan Quang Vinh, Trinh Thanh Tu
竣工時間:2014
攝影師: Oki Hiroyuki
設計靈感來源
隨著建筑工人的離開,白蟻沒有許多工具可供使用,只有它們的身體、土壤和唾液。為了適應風速和風向的變化以及太陽升起和落下的溫度波動,其它什么也做不了。同樣地,白蟻屋被建在熱帶國家,這里的氣候在晴天和雨季是極端的不同。每年,也會受到很多熱帶風暴的影響。
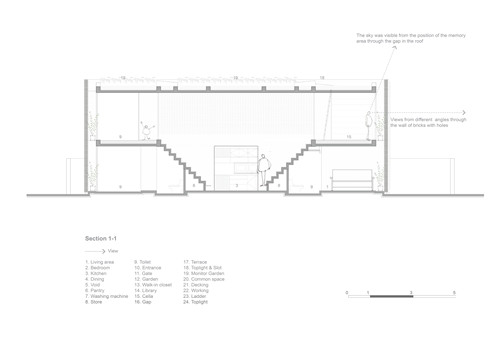
房屋結構及暴雨季節應對方案
房屋的結構包括許多層磚墻,墻上的洞隨意排列,呈白蟻狀,還有很大的層間空間。這些洞被認為是通風口,有助于風在屋內旋轉,讓微風和光線進入屋內的各個角落,創造一個清新的生活環境。


“雙層表皮”的特殊施工技術:外面一層為磚墻,室內一層為滑動玻璃,形成墻內空間,在兩個山墻上起緩沖層的作用。
在暴雨季節,二層將有助于阻止強風以及強降雨。另外,緩沖層產生壓力波動,推動風直沖縫隙。
建筑師在東西兩側布置了樓梯、倉庫和衛生間,創造了一個緩沖空間,以防止陽光直射,并使房屋結構在臺風中更加穩固。
房子中央有一個很大的共享空間,里面有一個烹飪臺、一張餐桌和一個娛樂角落。這個“大堂”然后通向房子的不同功能區,如休息室、客廳和臥室。夾層是另一個臥室、祭壇室和一個小圖書室。

在房子的共享區域,空間不受墻壁的限制,家庭成員仍然可以透過有洞的墻壁看到彼此和聊天。在這個忙碌的現代生活中,它可以幫助我們拉近家庭成員的距離。
采光
白天,自然光通過室內的墻投射出有圖案的影子。細長的天窗及相對狹窄的孔洞提供光線和通風,使得每一個房間都能看到天空以及郁郁蔥蔥的綠色屋頂。它們也被用作熱空氣的出口從而保持室內更加涼爽。在一天中不同的時間,穿過室內地板孔洞光的強度使得磚墻顏色發生變化,在磚墻表面創造色彩繽紛的多樣情感。在晚上,這座房子看起來像一盞巨大的燈籠,光線從孔洞里照射出去。




造價及節約成本措施
140平方米的總造價是27000美元,其中建筑造價22000美元,室內裝修、機電及家具造價共計5000美元。為了節約造價,老房子的木材被用來制作家具并為它們應用了非常簡單的設計。建筑師還將這棟房子里不必要的東西減少到最低程度,從移除飾面材料開始,再減少房間里不要的墻和門。認真計算機電工程,也合理地節約了造價。
最重要的事是,在決定把某件東西放到設計中之前,設計團隊總是問自己,如果把它們移除,是否會影響到空間的功能。這樣,它們就可以對房子做正確的決定并且節約造價。
對設計團隊來說,預算緊張是一個挑戰。但是,這也有助于讓他們認識到:造好的房子,不一定要造貴的房子。
材料使用
燒結磚是當地很受歡迎的材料,它讓人們想起當地幾百年前用磚建造的神秘寺廟。在熱帶陽光的照耀下,磚的顏色會發生變化,在不同的時間段帶來不同的感受。使用磚,以及保留舊花園,能使業主對這幢新房子感到熟悉。
磚是當地很受歡迎的材料,這是低廉且可持續發展與利用的材料。這種磚有很強的吸水力有助于調整房子的濕度。在熱帶氣候國家建造房屋時,這是很重要的因素。
多年來,磚以及其他原材料總是隱藏在飾面層以下。選擇磚作為建設房屋的材料,設計團隊還想證明磚在陽光照射下的自然及鄉村之美,也能成為建筑師無止境的靈感。


熱帶房屋模型——自主呼吸的房子
其理念是,如果每一棟房子都可以被設計成像白蟻屋這樣,可以自然通風,自己獲得光照,它就可以創造一個有風和陽光穿過每個區域和街道的城市區域。最終結果,將有助于節約能源以及減少全球變暖的負面影響。
設計團隊想要為現在及未來居住空間的組織,帶來一個不同的視角。因為自動通風和自然采光,白蟻房能實現真正的“自主呼吸”。更重要的一點是,建筑成本被最大化地節約。該模型可應用于為熱帶氣候國家的郊區家庭和平均收入家庭建造房屋。設計團隊認為,熱帶地區的理想房屋是可以自主呼吸的。目前,設計單位正在將這一模型應用在住房、Spa、酒店和診所等其他建筑中。



編輯:李海英
相關閱讀
江蘇揚州:今年實施五大攻堅行動提升城市綠化
城市道路綠化增綠行動。利用今年春季綠化黃金季節,針對城市道路綠化達標率、林蔭路覆蓋率等指標,全面開展道路綠化增綠提綠補綠,重點對87條道路的行道樹“有綠無蔭、有景少蔭”、綠化品種單一等問題進行整改,形成配置合理、錯落有致、層次清晰的道路綠化景觀【詳細】
北京昌平新城東區將打造濱水商業消費新地標
昌平新城東區位于昌平區南邵鎮,規劃建設用地面積11平方公里,規劃人口12萬,圍繞打造首都北部消費新地標編織街區控規已獲批。未來,昌平新城東區將打造成為京北體驗消費示范區、山水宜居典范城區、高水平綜合服務承載區和智慧產研創新園區【詳細】
南寧園博園舉辦“禮樂園博·南寧花朝盛典”
活動期間,南寧園博園還舉辦了漢服新秀大賽、同袍巡游、及笄成人禮、國風婚禮妝照展示、明制婚禮儀式典禮、六藝游園、書畫體驗、國風集市等精彩紛呈的活動,同時邀請眾多知名國風模特參與表演展示【詳細】
成都首屆“最美公園”評選結果出爐
據成都市公園城市建設管理局相關負責人介紹,本次“最美公園”評選范圍包括23個區(市)縣已建成開放的1514個公園,包括綜合公園、口袋公園,還有郊野公園【詳細】



