園冶杯專業獎|海南澄邁魯能蔚景溫德姆酒店
一花一世界,一水一天堂
野草鬧花處,唯聞溪水喧
一草一木,一步一景
碧波海畔,止此不知年華

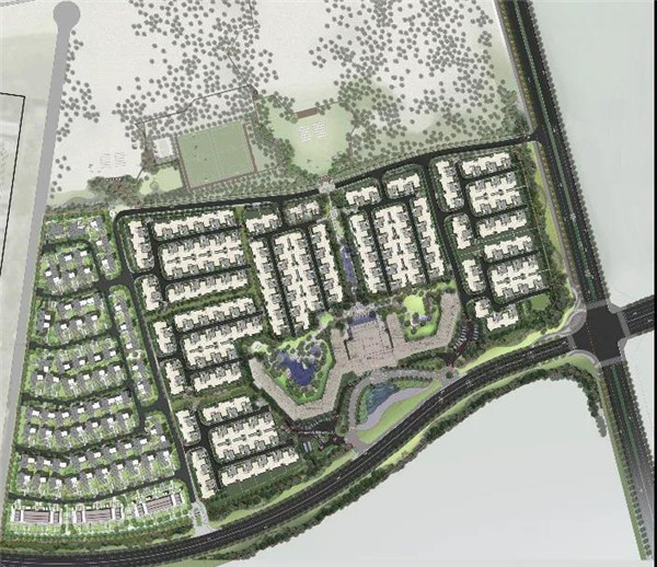
項目名稱:海南澄邁魯能蔚景溫德姆酒店
項目位置:海南省澄邁盈濱半島
項目面積:45000㎡
業主單位:海南永慶生態文化旅業有限公司
業主團隊:耿亞松、孔曉珍、焦鈺剛、王利、王自強
設計單位:重慶藍調城市景觀規劃設計有限公司
主創設計:李珂
設計團隊:敖翔、高天川、龔玲玲、董濟超、胡曉
施工單位:江蘇世邦建設有限公司
設計時間:2017.07-2018.12
項目概況
海南澄邁魯能蔚景溫德姆酒店,坐落于素有海口“亞龍灣”美譽的盈濱半島之上。毗鄰澄邁八景之一的禪林圣地永慶寺。地理位置優越,交通便利。
海南澄邁永慶寺始建于宋代,后經歷代擴建,成為當時澄邁規模最大的寺院,是當地民眾膜拜,祈禱活動的禪林圣地;重建之永慶寺,位于海南省澄邁縣老開發區盈濱半島,為現今瓊北地區規模最大的佛教寺院。

半島內海藍沙潔,風清水凈,島上綠樹成蔭,生態和諧,纖塵不染,實為一方凈土福源之地。


設計亮點
【禪 門】
一花一世界 一水一天堂
永慶大道主入口、作為整個海藍福源西區的門戶,繁茂淳郁的花木成片種植,將整個項目藏在濃密森林里。酒店大堂入口若隱若現,綻放自然靜怡的氣息,體現禪意靜怡的氣質。




【禪 徑】
野草鬧花處 唯聞溪水喧
特色風情景觀亭,枯山水庭院,形成步移景異的既視感觀。干凈的鏡水面倒影著周圍一切,創造出一個令人陷入冥想的意境之中。







【禪 苑】
一草一木 一步一景
休閑庭院,陽光草坪,度假泳池,小孩在樂園里面攀爬,感受童趣,感受自然。這里可以在放松下來,讓時間留住,感嘆生活的美妙。



【禪 庭】
碧波海畔 止此不知年華
別墅庭院區植物叢生,花木成片,儼然生長在幽靜恬靜的山林中,通過精致的入戶院門,提升客戶的歸屬感,闡釋禪修島居品質生活的定義。





編輯:liqing
相關閱讀
江蘇揚州:今年實施五大攻堅行動提升城市綠化
城市道路綠化增綠行動。利用今年春季綠化黃金季節,針對城市道路綠化達標率、林蔭路覆蓋率等指標,全面開展道路綠化增綠提綠補綠,重點對87條道路的行道樹“有綠無蔭、有景少蔭”、綠化品種單一等問題進行整改,形成配置合理、錯落有致、層次清晰的道路綠化景觀【詳細】
北京昌平新城東區將打造濱水商業消費新地標
昌平新城東區位于昌平區南邵鎮,規劃建設用地面積11平方公里,規劃人口12萬,圍繞打造首都北部消費新地標編織街區控規已獲批。未來,昌平新城東區將打造成為京北體驗消費示范區、山水宜居典范城區、高水平綜合服務承載區和智慧產研創新園區【詳細】
南寧園博園舉辦“禮樂園博·南寧花朝盛典”
活動期間,南寧園博園還舉辦了漢服新秀大賽、同袍巡游、及笄成人禮、國風婚禮妝照展示、明制婚禮儀式典禮、六藝游園、書畫體驗、國風集市等精彩紛呈的活動,同時邀請眾多知名國風模特參與表演展示【詳細】
成都首屆“最美公園”評選結果出爐
據成都市公園城市建設管理局相關負責人介紹,本次“最美公園”評選范圍包括23個區(市)縣已建成開放的1514個公園,包括綜合公園、口袋公園,還有郊野公園【詳細】



