冶金廠“變身”創意街區,揚州版“798”成文化新地標
當代中國,正處于大規模、高速度的城鎮化進程。而舊區改造是城市化和經濟發展的必然產物,它對完善城市功能、提升城市形象和提高市民生活質量具有諸多好處。
但是,城市更新、舊改項目面臨著各種難點和問題,政府需要一個和諧、生態的城市環境,居民、客戶希望在舊城區中找到過往的記憶和未來的期許,開發商希望打造一個品牌和利潤兼備的成功項目......因此,如何解決各種場地問題、平衡多方面的目標,就成為了舊改項目設計者面對的重大考驗。

在揚州冶金廠舊改項目中,設計團隊平衡了多方訴求,在重構價值的前提下讓61歲的老廠區重煥新生,以期帶動揚州工業城區煥發新的活力。
此舊改項目受到了當地媒體、民眾的廣泛關注,被媒體報道稱為揚州版的“798”。


媒體報道(來源:揚州時報)
揚州冶金廠地塊的往昔與新生
↓↓↓
設計緣起
“也今東南”是綠地香港在揚州的壹號作品,項目擇址揚州極具發展潛力的東南新城,這里也是揚州冶金廠舊址,至今已有六十一年歷史。
1958年,揚州冶金機械廠的前身“揚州地方國營電機廠”成立,全廠僅18名員工;上世紀80年代,發展壯大成為國內冶金機械設備制造的大型骨干企業、揚州市的利稅大戶;到1998年,響應國家號召,變更為有限責任公司;到2004年冶金廠進行國企改制。
隨著時代的變遷、市場大潮的洗禮,在“退二進三”的大背景之下,曾經熱火朝天的工業廠區逐漸“冷卻”;由于近年來可持續發展理念的不斷加深,2017年冶金廠讓位城市建設,開始陸續停產、整體搬遷。
對于揚州冶金廠舊址場地的改造更新,我們希望在保護工業文化的同時,能夠為城市的居民提供一處富有活力的生活劇場、有情感記憶的文化地標。

項目區位圖
價值轉變
在項目初期,我們原本是以常規地產的手法在場地上堆砌了種種“亮點”,以夸張的視覺效果替代場地留存的工業痕跡。而在我們去到現場勘察場地后,看到聳立的水杉、落灰的機床、粗獷的磚墻和鋪滿廠房立面的爬山虎,關于項目的價值導向、設計思路發生了轉變。

設計草圖






我們針對“賦予冶金廠一個怎樣的新的城市角色?”“如何延續工廠的空間氣質和文化記憶?”,“如何重新鏈接場地與人以及人與自然的關系?”,這三個問題進行了深入的思考,并且重新制定了設計策略。
植根于場地本身,我們提出了三大核心設計策略:
“時光痕跡,文化延續”——保留原有建筑特色,以時間流過的痕跡,讓城市工業文脈在空間里延續。

“藝術介入,激活新生”——用藝術重建時間,通過藝術裝置融入場地,形成獨特空間氛圍,重建社群歸屬認知。

“自然鏈接,永續生態”——以自然的形式,鏈接人與生態之間的關系,塑造與自然共生的永續未來社區,煥發生機。

重生之路

改造前鳥瞰圖

改造施工過程


改造后鳥瞰圖

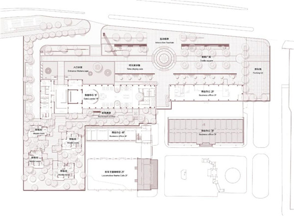
場地平面圖


剖面圖
從“冶金食堂”到“時光秀場”
我們從原廠房獨具特色的墻面,提取磚紅、工業灰兩大色彩元素,呼應工廠文化,融入環境。
項目售樓部(2號樓)是以前冶金廠的員工食堂,建筑立面特別并且保留得較為完整,側邊留存七株高大的水杉。我們以簡潔的靜水面烘托工業遺存,前場搭配野趣的觀賞草和疏朗的喬木,在市政立面上強化建筑的主體性。




入口處設置了條石及工業感的標志系統,水景以耐候鋼板做立面材料,與建筑立面的紅磚交相輝映,同時大面積水景將建筑立面完整地倒映出來,仿若水上建筑一般,大大提升了原工業場所的可觀賞性。




我們把舊址原來的部分樹木,處理轉變為圓柱形態的短木塊,應用在場地的景觀布置中。并且以紅磚藝術雕塑、休閑樹池這些兼具趣味和紀念功能的形式,與周邊的居民們產生各種互動和情感聯系,將歷史記憶里的冶金廠過往以更加親近的方式在場地中延續新生。






從“廠區辦公”到“劇場生活”
商業街區作為舊時廠區的辦公樓,保留了非常多的生活記憶。我們把往日承擔著重要角色的機床設備原樣放置在街區,以“陳列”的方式致敬揚州近代工業的發展與變遷,讓歷史的記憶和力量重新綻放在陽光下。

我們還以冶金廠發展歷史的各大重要時間節點,拼成記載冶金廠發展的“時光廓道”,延續原本作為廠報、獎狀給人們留下的記憶。



項目的1號樓有一面特別的磚墻,采用原來舊廠房拆下的青磚作為材料,通過運用參數化的設計手法,將其結構再重組,形成藝術性的鏤空質感。
為了讓場地景觀與建筑磚墻互相呼應,我們在代表冶金廠成立年份1958年的時間雕塑中,也采用了舊廠房的紅磚作為材料。通過適當選擇現代嵌入部分的創新設計度,使傳統文化、工業遺存等凝聚的時間雕塑相契合,在動態的觀察與時間過程中找到最優的答案。
在此處,人們能用眼看到歷史的印記,用手摸到老材料的質感,將自己沉浸在過往的歷史故事中,想象自己就像是這其中的一塊磚,通過情景的代入,去體會和重拾那些曾經的場所記憶。

而在鏈接人與自然方面,我們保留了靠近建筑的七株水杉,并以水杉為植物起點,加入同為強烈豎向形態、但具有秋色葉的銀杏,搭配紅磚樹池,延續場地植物氛圍的同時,豐富了場地的季相變化,也擴大了休閑場地范圍,加強了場所的休閑感。



另外,我們從原工廠的內部提取了荷花池這一休閑元素符號,延續放置到前場做了具有燈光效果的感應噴泉。
噴泉能感應到游人、嬉戲者的腳步動作而啟動,在五彩繽紛的互動燈光映襯下,噴泉水柱變換著不同造型,孩童們歡快地玩水、游戲,讓整個街區更添活力和生趣。每當夜幕降臨,流光溢彩的旱噴廣場成為了市民休閑放松的好去處。








從“工業棕地”到“宜居綠地”
工業棕地,是由于城市產業結構轉型、可持續發展理念的加深、工業區從城區外遷等原因,早期的城市工業區開始衰退,部分工業區地塊逐漸成為被廢棄、閑置或利用率很低的用地,被稱為“鐵銹地帶”。
揚州冶金廠地塊,在工廠搬遷后也曾是一片荒涼的工業棕地,經過改造更新后煥發欣榮,鏈接了人與自然、實現綠色永續發展。
在后場通道,我們營造了一條花境小路,多彩的花卉、蔥郁的草木撫平了冶金廠舊址的荒涼,讓自然與工業并存,蛻變成為一片活力新生的宜居綠地。
小路旁的休閑坐凳,增加了行人與花境的親密接觸;室內外視線通透,大氣簡潔,讓工業之美自然呈現;粗礪而不粗糙的鋪裝地刻,充滿美感的時光雕刻,都體現了展示品質的設計細節。





生活在歷史之上,找到鏈接過去與未來變化的“時間印記”,使舊區再次煥發生機,讓新的生活方式不會失去情感的溫度,讓城市的記憶不斷、精神永存。
也今東南,鏈接了揚州東南片區的歷史記憶和未來生活,筑牢了城市的精神文化根基,提高了居民的生活幸福指數,將成為揚州人的全新文化地標、網紅打卡點。



項目信息
項目名稱:綠地香港 · 也今東南
委托單位:綠地香港
項目面積:7800㎡
景觀設計:GVL 怡境國際集團
建筑設計:上海霍普建筑設計事務所股份有限公司
室內設計:G-ART 集艾設計
設計時間:2019年12月
竣工時間:2020年5月
項目景觀攝影:魯冰
文中部分照片來源:霍普股份
建筑攝影:方空間影像
編輯:liqing
相關閱讀
江蘇揚州:今年實施五大攻堅行動提升城市綠化
城市道路綠化增綠行動。利用今年春季綠化黃金季節,針對城市道路綠化達標率、林蔭路覆蓋率等指標,全面開展道路綠化增綠提綠補綠,重點對87條道路的行道樹“有綠無蔭、有景少蔭”、綠化品種單一等問題進行整改,形成配置合理、錯落有致、層次清晰的道路綠化景觀【詳細】
北京昌平新城東區將打造濱水商業消費新地標
昌平新城東區位于昌平區南邵鎮,規劃建設用地面積11平方公里,規劃人口12萬,圍繞打造首都北部消費新地標編織街區控規已獲批。未來,昌平新城東區將打造成為京北體驗消費示范區、山水宜居典范城區、高水平綜合服務承載區和智慧產研創新園區【詳細】
南寧園博園舉辦“禮樂園博·南寧花朝盛典”
活動期間,南寧園博園還舉辦了漢服新秀大賽、同袍巡游、及笄成人禮、國風婚禮妝照展示、明制婚禮儀式典禮、六藝游園、書畫體驗、國風集市等精彩紛呈的活動,同時邀請眾多知名國風模特參與表演展示【詳細】
成都首屆“最美公園”評選結果出爐
據成都市公園城市建設管理局相關負責人介紹,本次“最美公園”評選范圍包括23個區(市)縣已建成開放的1514個公園,包括綜合公園、口袋公園,還有郊野公園【詳細】



